行业知名品牌
专注实验室设备研发生产!
我们营业的时间
9:00-18:00
  • 点击这里给我发消息售前咨询
在线咨询
最新更新 / News Update
联系方式 / Contact Us
广州霖雅实验室科技有限公司
电话:020-39293227
联系人:黄经理
手机:13312810621
地址:广州市番禺区石基镇莲塘路莲新大街34号
通风工程
通风工程

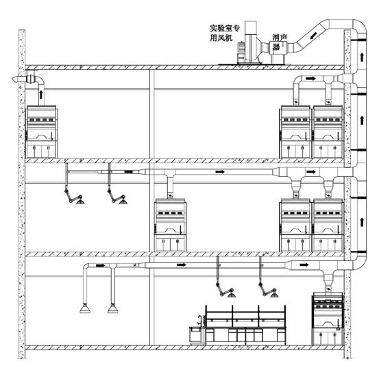
实验室通风与舒适性空调系统的通风设计要求不同,主要目的是提供安全、舒适的工作环境,减少人员暴露在危险空气下的可能。通风主要解决的是工作环境对实验人员的身体健康和劳动保护问题。

 实验室通风要求新风全部来自室外,然后100%排出室外,通风柜的排气不在室内循环。化学实验室换气要求每小时大于10次,物理实验室每小时大于10次,实验室无人时换气可减少为6次。实验室通风柜设计数量要足够,并且不作为唯一的室内排风装置,仪器室或产生危险物质的仪器上方设局部排风系统

 实验室的补风一部分来自空调系统直接送入实验室的新风,这部分新风根据实验室排风量的变化而变化;另一部分通过空调系统送入非实验室区域的走道、房间再通过实验室的门缝补给。实验室的负压通过送、排风风量和送排风口的布置来实现,气流组织从办公、管理用房、内走道、到产生危险物质的实验房间。通风柜的位置布置在远离空气流动、紊流大的地方,远离行走区域和空气新风区。新风从远离通风柜的方引入,空气流动路径远离通风柜

 通风柜的类别

 建设现代化的实验室是个综合的系统工程。在装备各种仪器设备及其配套设施的同时,既要考虑供电、给水、排水、送风、排风、净化、排污等要求,还要考虑到对人员、物体、周边环境的安全性,噪音、异味、视觉环境的舒适性,仪器设备的可操作性、功能性,以及信息处理的便捷性。因此,现代化的实验室必须有最佳的设计和高品质的设备去满足在现代化实验室设备中有通风柜、中央实验台、边台、药品柜、器皿柜、气瓶柜等,其中通风柜是生化实验室设备中担负着十分重要的功能,是必不可少的设备。因此,选择通风柜是实验室建设中的重要问题,必须引起足够的重视。

 通风柜按照排风方式分类:分为上部排风式、下部排风式和上下同时排风式三类。为保证工作区风速均匀,对于冷过程的通风柜应采用下部排风式,对于热过程的通风柜采用上部排风式,对于发热量不稳定的过程,可在上下均设排风口随柜内发热量的变化调节上下排风量的比例,从而得到均匀的风速。

 通风柜按照进风方式分类也分三类。通过室内进风在柜内循环后排出室外称为全排风式,这是应用非常广泛的一种类型。当通风柜设置于采暖或对温湿度有控制要求房间时,为节省采暖,空调能耗,采用从室外取补给风在柜内循环后排出室外的方式称为补风式通风柜。再一种就是变风量控制式的通风柜。普通的定风量系统需要人工调整固定叶片的风阀,调节通风柜的排风量,当调节阀门到某一角度时达到希望的面风速。变风量控制是通过调节阀门的传感器改变风量达到给定的面风速,当然标准式成本低、变风量成本高,适用于要求精度高的场合。

 通风柜按照使用状态分类可分为整体式下部开放式、落地式、两面式、三面玻璃式、桌上式、连体式以及根据不同实验使用需要而设计的对放射性实验的、对合成实验的,对过氯酸实验的专用通风柜。

 通风柜的主要功能

 通风柜的功能中最主要的是排气功能,在化学实验室中,实验操作时产生各种有害气体、臭气、湿气以及易燃、易爆、腐蚀性物质,为了保护使用者的安全,防止实验中的污染物质向实验室扩散,在污染源附近要使用通风柜。

 以往通风柜使用台数较少,只在特别有害且危险的气体及产生大量热的实验中使用。通风柜只担负实验台的辅助功能。近年来考虑到改善实验环境,在实验台上进行的实验逐渐转移到通风柜内,这就要求在使用通风柜的最大目的是排出实验中产生的有害气体,保护实验人员的健康,也就是说要有高度的安全性和优越的操作性,这就要求通风柜应具有如下功能:

 (1)释放功能:应具备将通风柜内部产生的有害气体用吸收柜外气体的方式,使其稀释后排至室外的机构。

 (2)不倒流功能:应具有在通风柜内部由排风机产生的气流将有害气体从通风柜内部不反向流进室内的功能。为确保这一功能的实现,一台通风柜与一台通风机用单一管道连接是最好的方法,不能用单一管道连接的,也只限于同层同一房间的可并联,通风机尽可能安装在管道的末端(或屋顶处)。

 (3)隔离功能:在通风柜前面应具用不滑动的玻璃视窗将通风柜内外进行分隔。

 (4)补充功能:应具有在排出有害气体时,从通风柜外吸入空气的通道或替代装置。

 (5)控制风速功能:为防止通风柜内有害气体逸出,需要有一定的吸入速度。决定通风柜进风的吸入速度的要素有:实验内容产生的热量及与换气次数的关系。其中主要的是实验内容和有害物的性质。通常规定,一般无毒的污染物为0.25―0.38m/s,有毒或有危险的有害物为0.4―0.5m/s,剧毒或有少量放射性为0.5―0.6m/s,气状物为0.5m/s,粒状物为1m/s。为了确保这样的风速,排风机应有必要的静压,即空气通过通风管道时的摩擦阻力。确定风速时还必须注意噪音问题,通过空气在管道内流动时以7―10m为限,超过10m将产生噪音,通常实验室的噪声(室内背景噪声级)限制值为70dB(A),增加管道裁面积会降低风速,也就降低噪音,考虑到管道的经费和施工问题,必须慎重选择管道及排风机的功率。

 (6)耐热及耐酸碱腐蚀功能:通风柜内有的要安置电炉,有的实验产生大量酸碱等有毒有害气体具有极强的腐蚀性。通风柜的台面,衬板、侧板及选用的水咀、气咀等都应具有防腐功能

 气体排放处理

 由于实验室气体排放中存在着很多有毒和酸碱腐蚀性极强的气体,所以在排入大气前要对气体进行过滤处理,通常情况下:酸性气体选用立式酸雾塔;有毒和有机气体选用光学催化净化箱。两种设备分别安装在排风系统末端,立式酸雾塔安装在风机的正压段,光学催化净化箱安装在风机负压段。动物房的气体经过初效和中效过滤后,直接排入大气,但在排风口处做高压喷射流处理,喷射高度在3米以上。

 实验室通风系统设计方法

 综上所述,实验室通风系统对设备(特别是通风柜)是有一定标准和要求的。抛开设备因素,单纯从系统设计上考虑,实验室通风空调系统的设计要考虑以下几个主要因素:

 (1)保证实验室的安全性,保证一定数量的换气次数;

 (2)解决实验室通风系统负压的设计和系统控制;

 (3)在满足换气次数和全新风条件下,控制能耗。

 (4)系统稳定可靠。

 实验室通风设计采用以下步骤和方案:

 (1)实验室根据工艺要求和功能布置选择一定数量的通风柜,有的还兼有部分局部排风罩。通常校核下来换气次数远远大于10次,一般在20-30次以上,满足换气次数要求。但是此换气次数是按照通风柜最大开启面积计算的通风量,资料和经验表明100通风风柜99%的时间只有18个或更少的人在使用。故还应校核通风柜最小开启面积时的通风量和换气次数,若小于换气次数要求,则增加综合排风系统。

 (2)实验室通风采用全新风系统,通风柜的排气不在室内循环。由于实验室要求房间相对其他辅助区域为负压。所以实验室的新风量设计为排风量的70﹪-80﹪。另外20﹪-30﹪的新风送至实验室辅助房间、办公、管理用房、内走道等,再由门窗缝隙补充到房间。

 (3)通风柜的风量平衡可以采用定风量控制系统,即排风量恒定,送风量和门窗缝隙补充风量恒定。此方法适用于最大排风量满足最小换气次数要求的实验室。

 (4)对于排风量远大于最小通风量要求的房间还可以采用两段式通风控制系统保证风量平衡,即根据通风柜的位移信号,排风机、送风机有2种送风工况,低风量工况应用于维持最小换气次数的要求,节约能耗。此情形采用了变风量控制系统。通风柜风量变化时,排风量也会相对变小,此时要求放置在屋顶的排风机随着通风柜柜门的位置变化而变频,降低风量,保证通风柜面风速恒定。同时自控系统改变全新风风机的频率,降低风量,维持负压平衡。变风量系统可以降低系统能耗。系统最大、最小换气次数接近则考虑采用定风量系统,使得系统简单,降低初投资。

 通风系统除上文所述对通风柜有特殊要求外,对其他设备和控制系统也有一定的要求和标准。通风柜的选择除满足排风和捕捉能力外,还要注意需要根据调节门移动而立即改变风量,维持表面风速的恒定。笔者建议系统风量的测定和控制以柜门位移为信号而不是测定表面风速来测定。实验室压力控制和最小通风量的控制除了设备选型因素以外,通风系统设计和控制系统是关键因素,要保证系统的反应时间要足够短(<1秒),通风系统不平衡会导致通风柜排风和捕捉能力散失,气流流出实验室,建筑物内压力不稳定。

 还有一点要注意的是系统应该是压力变化无关型的,即系统风量的变化不会因为风管内静压的变化而使得反应时间缓慢影响系统流量的精确性。压力相关型的系统也会造成系统流量设备无法精确控制,缓慢的反应时间会让送排风设备产生震荡,速度不稳定会有大量的平衡问题存在,波动的送、排风系统使气流平衡复杂化,从而自控系统无法实现调节功能。

 所以,系统首先监测的是通风柜的状态,接受调节门感应器信号后可以计算调节门面积(风量),此时向(压力无关型)阀门送出风量控制信号,调节阀门的开度,送风量跟随排风量即刻变化,送排风机变频调节送风量。

 结论

 上述介绍了实验室通风设计的目的,实验室通风柜的的要求和功能,排放气体的处理方法和实验室通风系统设计方法。实验室的通风设计首要解决的问题是安全性问题,通风柜的捕捉集尘能力要符合一定的标准和规定,气流方向为流向实验室,实验室要随时保持负压。实验室通风设计还要考虑到为实验人员创造一个舒适的工作环境,解决温度、气流、噪音的问题,同时要保证最低的能源消耗,系统稳定,容易控制,易于操作管理。简而言之就是要从安全、舒适、节能、可靠运行方面进行设计。

精彩案例
合作伙伴